formulaires PDF DYNAMIQUES

recherche par :  TYPES DE FORMULAIRES

CONTRATS

VEUILLEZ PARCOURIR les catégories ICI-BAS SELON VOS PRÉFÉRENCES ET BESOINS

(parcourir les onglets)

Tous les modèles présentés sont protégés par droit d’auteur.
Toute reproduction, modification ou utilisation non autorisée est interdite.

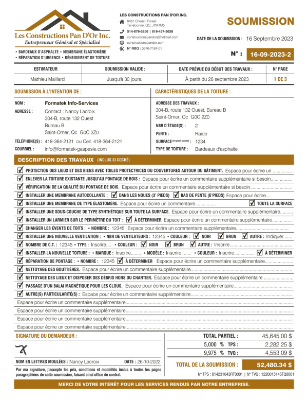
PDF | CONTRAT | # P-M3CT19X-1

Category:
*TOUT VOIR - PDF DYNAMIQUE / INTERACTIF, PDF - CONTRAT, PDF - MODÈLE M3, PDF - CONSTRUCTION, PDF - TOITURE
SKU:
# P-M3CT19X-1
Price:
Prix de base : 250.00 $ + Options ($)
TYPE :
CONTRAT D'ENTENTE
DOMAINE(S) :
CONSTRUCTION, TOITURE
COULEUR(S) :
Noir / gris, Orange / jaune, Brun / beige
ADRESSE(S) CLIENT :
Principale AVEC adresse livraison / travaux
SIGNATURE :
AVEC signature et date
OPTIONS ($):
0.00 $ AUCUNE
MODÈLES :
MODÈLE M3 - PLAT ET PLEIN
{{variant.name}}:
{{opt.name}}
{{opt.value ? '' : opt.name}}
{{opt.value ? '' : opt.name}}
Description

Cliquer sur leS IMAGES DE L'exemple pour agrandir.

 

POUR TESTER CET EXEMPLE :  gallery/P-M3CT19X-1-CONTRAT-PDF-DYNAMIQUE-INTERACTIF.pdf

 

!!! Il se peut que les boutons ne fonctionnent pas et que les polices de caractères soient altérées en testant le fichier à partir de votre navigateur web. Il faut alors télécharger le fichier sur votre ordinateur et l'ouvrir à partir du logiciel ABODE ACROBAT READER (https://get.adobe.com/fr/reader/otherversions/).

SI UN FORMULAIRE VOUS INTÉRESSE OU POUR OBTENIR PLUS D'INFORMATIONS

SVP REMPLIR LE FORMULAIRE ICI-BAS

DEMANDE DE SOUMISSION DE PRIX (DEVIS) ou INFORMATIONS

     *  champ obligatoire

# Réf. formulaire(s) désiré(s) (écrire le # numéro, par exemple : # P-M3CT12-1) *
Prénom, Nom de famille *
Nom d'entreprise *
Courriel *
Pays, province *

TYPE DE FORMULAIRE

 *

OPTIONS ($) À INCLURE AU DEVIS

Message
Si vous désirez joindre votre logo

Max file size (Mb): 5

Au plaisir de collaborer avec vous !

INFORMATIONS - PDF DYNAMIQUES

informations générales

Le prix indiqué sous les modèles en exemple est le prix de base. Celui-ci peut augmenter avec l’ajout d’options ($) désirées. Ce prix sera inclus à la soumission de prix officielle qui vous sera envoyée par courriel.

Le prix de base des « # Réf » des exemples de formulaire contenant un X sont à titre de référence seulement, car ce sont des formulaires plus onéreux parce qu’ils ont été entièrement personnalisés pour le client.

Tous les coûts sont avant les taxes applicables (TPS & TVQ).

Toutes les instructions et ébauche(s) à approuver (exemple(s) à tester au format PDF dynamique et protégé(s) par filigrane avant paiement) vous seront envoyées par courriel au fur et à mesure suite à l’acceptation de notre soumission de prix et l'avancement des travaux de création et programmation.

formulaires PDF DYNAMIQUES

INSTALLATION : Ne nécessite aucune installation à distance. Vous devez vous familiariser par vous-mêmes avec le logiciel Adobe Acrobat Reader ou l'application pour mobile Pdf Expert.

POUR L'UTILISATION SUR PC : Vous devez télécharger le logiciel gratuit ADOBE ACROBAT READER gratuit pour PC (ordinateur) pour être en mesure d'utiliser le formulaire programmé pour vous : https://get.adobe.com/fr/reader/otherversions/

POUR L'UTILISATION SUR MOBILES : Pour l'utilisation à partir de mobiles (ex : iPhone, smartphone, iPad, etc.) nous ne garantissons pas les fonctionnalités des boutons et calculs. Toutefois, et jusqu'à maintenant, la version gratuite de l'application PDF EXPERT permet de faire fonctionner ces fonctions sans problème : https://apps.apple.com/us/app/pdf-expert-edit-sign-read/id743974925#?platform=iphone

IMPORTANT : Le coût du formulaire n'inclut pas de formation sur l'utilisation des logiciels / applications pour ouvrir et utiliser les PDF DYNAMIQUES. Mais ce sont des outils informatiques simple à utiliser avec lesquels vous vous familiariserez rapidement.

OPTIONS ($)

Montant(s) approximatif(s) à ajouter au prix de base indiqué

Si vous commandez plusieurs formulaires et/ou options, un rabais conséquent pourrait être appliqué. Celui-ci sera inclut à l'intérieur de notre soumission de prix en bon et due forme qui vous sera transmise par courriel.

FILIGRANE

Image en transparence placée en fond de formulaire (l'image de base est fournie par vous ou par nous).

+ 15.00 $ ou + 25.00 $

ICÔNES PAIEMENT

Icônes personnalisés ajoutés pour indiquer les modes de paiement offerts (pris selon la quantité).

+ 10.00 $ à 20.00 $

BILINGUE 1

Programmation d'une alternative anglaise dans un formulaire distinct. Prix par page (ou selon le cas).

+ 55.00 $

IMAGES

Toute autre image ou des logos d'association professionnels comme APCHQ, CMMTQ, etc.

+ 15.00 $

CODE QR

Code intégrée à partir de votre propre image ou celle générée par nos soins à votre demande.

+ 15.00 $ à 25.00 $

BILINGUE 2

Programmation d'une version bilingue avec le français et l'anglais en superposition. Prix par page.

+ 40.00 $ et plus

Tous les prix ci-dessus indiqués peuvent changer sans préavis. Ce sont les prix indiqués sur cette page web qui sont valides et seront utilisés pour établir votre soumission de prix en bon et due forme.